• 草莓视频在线观看视频,草莓视频官网在线观看,草莓视频色板下载,草莓视频APP软件下载

    上海草莓视频在线观看视频泵阀制造有限公司草莓视频官网在线观看,污水泵【工厂直供,一件批发,以换代修】
    technology
    草莓视频色板下载

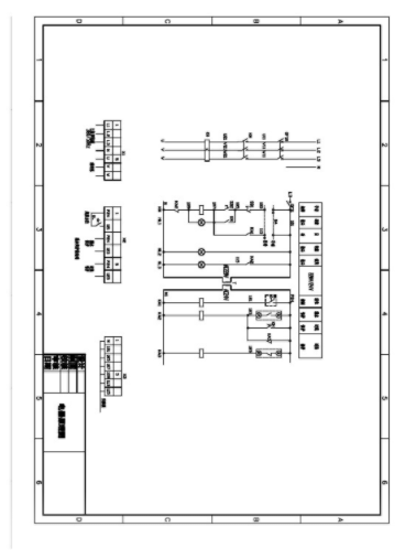
    水泵控制柜的控制及端子接线说明

    优质内容 来源:草莓视频在线观看视频泵业 作者:草莓视频在线观看视频小编 发布时间:2023-07-28 15:13:45 阅读次数: 收藏:23 分享:11

     
    导读:水泵控制柜的控制及端子接线说明 1、液位控制 选用水银接点浮球,需用两只。若选用磁性浮球,则只需一只,接法是:将浮球开关接入Y1 Y2端子即可。 2 、定液位备用泵自动投入 若选...

      水泵控制柜的控制及端子接线说明

      1、液位控制

      选用水银接点浮球,需用两只。若选用磁性浮球,则只需一只,接法是:将浮球开关接入Y1 Y2端子即可。

      2 、定液位备用泵自动投入

      若选用水银接点浮球,需要三只。

      若选用磁性浮球,则只需两只,接法是:先将Y1、Y3短接,在将起泵、停泵共用浮球接入Y1、Y2端子,将备用泵浮球接入Y1、Y4端子。如果该型控制器控制其它类型水泵,即没有漏水、温度信号线的水泵,则只须将漏水、温度信号线端子悬空,不接任何线路即可,否则该控制器不能正常工作。

    草莓视频官网在线观看控制箱接线图

      3、压力控制型

      传感器通常选用设置上、下线的电接点压力表(如YX系列),也可选用上限、下限独立的两只电接点压力表或压力继电器。当压力降压下限压力时,P0、P1接通,水泵起动,压力升至下限压力时,P0、P2接通,水泵停止工作。

      4、温度控制型

      传感器通常选用压力表式设置上、下限的电接点温度表,也可选用其他温度调节仪。当温度达到上限设定值,T0、T2接通,水泵开始工作。当温度降压下限设定值,T0、T1接通,水泵停止工作。

      5、空调联控型

      如果需要易地操作,将K1、K2接常闭(停止)按钮,K3、K4接常开(启动)按钮。若不需易地操作,先将K1、K2短路,K3、K4开路,这样水泵则由控制柜面板按钮操作。如果需要先开水泵,后开机组,则将联机常开触点K5、K6串入空调机组的控制回路。

      6、消防喷淋泵

      消防喷淋泵有消防控制器输往消防中心的遥控按钮信号线及各分泵泵开、泵停信号接点。

      以上就是自吸草莓视频官网在线观看厂家为大家提供的内容,希望能够对大家有所帮助!

    本文标签:

    本文参考资料来源: 中国泵阀网 泵阀商务网 自吸草莓视频官网在线观看厂家 中国知网

    点赞 (0) 已帮助
    您的认可是对草莓视频在线观看视频最大的鼓励
    免责声明:部分文章信息来源于网络以及网友投稿,本网站只负责对文章进行整理、排版、编辑,是出于传递 更多信息之目的,并不意味着赞同其观点或证实其内容的真实性,如本站文章和转稿涉及版权等问题,请作者在及时联系本站,草莓视频在线观看视频会尽快处理。
    本文标题:水泵控制柜的控制及端子接线说明本文地址:http://www.wanjianls.com/technology/61.html
    上一篇:没有了 下一篇:厂家为您介绍防爆草莓视频官网在线观看
    售前咨询
    售后服务
    官方微信
    400-6656-887
    返回顶部
    网站地图